Startseite

17034 Neubrandenburg / Viermietung 5-Raum Wohnung / Heidenstraße

Mietkosten

- 1.100 € Kaltmiete
- 8,87 € / m²
- 310 € Nebenkosten

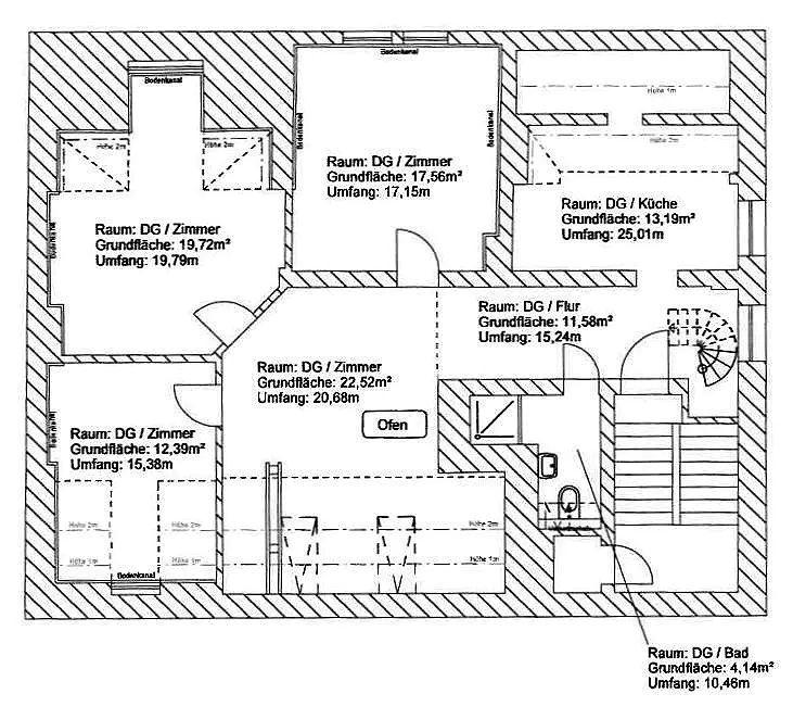
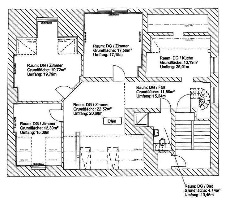
Wohnfläche

124 m² / 5 Zimmer (3 Etage)

Bausubstanz & Energieausweis

- Baujahr 1920
- 3. Geschoss und Kelleranteil
- Gartenanteil, Garten
- Badezimmer mit Dusche und Fenster
- Bodenbelag: Laminat und Fliesen
- Fenster aus Kunststoff
- Zentralheizung

Objektbeschreibung

Die Mietwohnung die wir Ihnen hier vorstellen, ist groß hell und fast schon luxuriös zu nennen. Sie befindet sich in einem Altbau mit viel Charm und aktuell erneuerter Fassade, welcher kaum Wünsche offen lassen dürfte. Die Wohnung selbst ist gerade renoviert worden, also ein Erstbezug nach Komplettrenovierung. Außer dem Bad, haben alle Räume Fenster. Die Beheizung der Wohnung erfolgt zentral. Das Bad ist mit einer Dusche ausgestattet. Schuppen und Keller gehören zum Mietvertrag. Eine Gartennutzung ist möglich. Größe und Art nach Absprache.