Startseite

17391 Stolpe - Verkauf Reihenendhaus

Kaufpreis

150.000 €
- 980 €/m²
- 3,57 % Provision)

Wohnfläche

153 m² / 5 Zimmer (2 Etagen)
650 m² Grundstück

Bausubstanz & Energieausweis

- Baujahr 1900 - Objektzustand renovierungsbedürftig (letzte Sanierung 1993)
- Ausstattung einfache Qualität
- wesentlicher Energieträger Erdgas L (Gasheizung)
- Energieausweis liegt zur Besichtigung vor

weiteres

- Reihenhaus
- 1 Außenstellplatz (Carport)

Lage

Objektbeschreibung

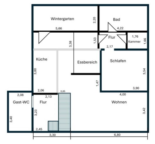
Bei dieser ansprechenden Immobilie handelt es sich um ein zweistöckiges Reihenendhaus. Das Objekt steht ab sofort zum Verkauf. Zu dem Objekt zählen fünf Zimmer. Das Haus wurde ca. 1900 erbaut und wird per Gasheizung beheizt. Außerdem steht Ihnen ein Carport zur Verfügung. Ein großes Außengelände bietet viel Platz zum Gärtnern, Spielen oder zum Barbecue mit Freunden. Auf dem Grundstück, mit dem vorhandenen Baumbestand können Sie total entspannen. Es bietet dadurch schöne schattige Plätzchen - man fühlt sich wie in der unberührten Natur. Der Preis für die Immobilie samt Grundstück liegt bei 150.000 Euro.

Ausstattung

Zu diesem wirklich sehr schön gelegenem Schatz gehört ein Carport mit einem Schuppen und ein ca. 800 m² großes Grundstück mit Hecken und Baumbestand. Das Bad hat eine Wanne, und einen vorbereiteten Bereich für die Installation einer Dusche. Die Küche ist in einem offenen Bereich als fester Bestandteil der Raumaufteilung eingebaut -direkt gegenüber dem Essbereich und unmittelbar vor dem herrlich, lichtdurchfluteten Wintergarten. Im Obergeschoß befinden sich zwei Räume - davon ein sehr großer Wohnraum mit direktem Blick auf die hinter einer Glaswand liegenden Loggia.