Startseite

17033 Neubrandenburg / VERKAUF 3-Raum Wohnung

Kaufpreis

- 198.000 €
- 2.163 €/m²
- 391 € monatliches Hausgeld
- 1,785 % Provision für Käufer

Wohnfläche

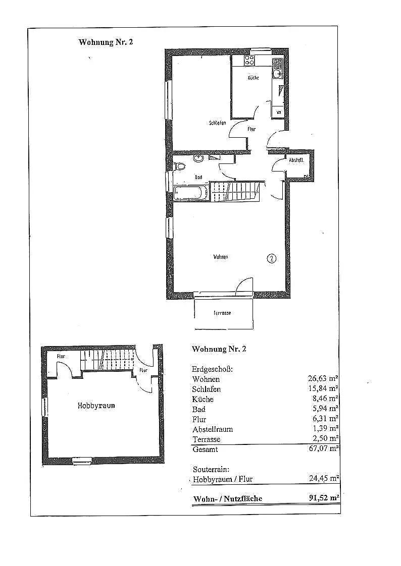
91,5 m² / 3 Zimmer (EG)

Bausubstanz & Energieausweis

- Bezug 1997
- Erdgeschoss und Kelleranteil
- Außenstellplatz
- Terrasse
- Badezimmer mit Badewanne und Fenster
- Bodenbelag: Laminat und Kunststoff
- Fenster aus Kunststoff

weiteres

- Zentralheizung (Gas)
- Energieausweis: C

Lage

Das Mehrfamilienhaus befindet sich in einer gepflegten Umgebung in Zentrumsnähe. Die Innenstadt und der Bahnhof von Neubrandenburg sind fußläufig zu erreichen. Alle Einrichtungen des täglichen Bedarfs sowie Arztpraxen, Apotheke, Schule, Kita u.a.m. sind ebenfalls in unmittelbarer Nähe vorhanden und fußläufig in ca. 10 Minuten erreichbar.

Grundriss
Grundriss
Grundriss

Zur Stadt Neubrandenburg

Neubrandenburg ist mit seinen fast 64.000 Einwohnern, einer der wichtigsten Wirtschaftsstandorte in Mecklenburg-Vorpommern. Die Stadt selber lässt mit seinen Geschäften, seinen Institutionen und seinen Freizeitangeboten keine Wünsche offen. Mit der zentralen Lage in der Mitte zwischen der Bundeshauptstadt Berlin und der Ostsee sind Großstadt und Meeresrauschen in nahezu greifbarer Nähe.

Ausstattung

Raumaufteilung
Im Erdgeschoss befinden sich ein geräumiges Wohnzimmer und ein sehr schönes Schlafzimmer. Im Kellergeschoss befindet sich ein großer Hobbyraum mit Tageslicht.

Beschreibung der Wohnung
Es handelt sich hier um eine vermietete Wohnung. Die wirklich helle, große und lichtdurchflutete 3-Raumwohnung befindet sich in einem 1996 gebauten Mehrfamilienhaus. Sie betreten die Wohnung über einen kleinen Doppelflur, von dem sich alle Räume erschließen. Die Küche verfügt über ein Fenster und ist dadurch ebenfalls hell. Eine Einbauküche ist in der Wohnung vorhanden. Vom Wohnzimmer aus haben Sie Zugang zur Terrasse. Ein Abstellraum in der Wohnung und ein separates Kellerabteil sind ebenfalls Bestandteil der Wohnung, genauso wie ein festgelegter Stellplatz mit Sondernutzungsrecht des Eigentümers. Die Wohnung befindet sich in einer gepflegten Anlage.

Besichtigungstermine
nach Vereinbarung